台湾17㎡迷你房,打造成loft小公寓,充满贵族的气息,不再嫌弃小
现在城市中生活的人多,而对于房子的需求量也会增大,这就让房价是处于不断增长的状态,我们怎么能在这座城市中有一套属于我们的房。有些人是在城市中买了套属于自己的房,但房子的面积是非常的小,也会让许多人嫌弃我们家里的房不会有贵族的气息。那只是我们在装修时没有给它打造好而已!

案例:17平标准空间
居住成员:单身贵族
房屋面积:17平
房屋类型:标准格局
空间格局:1房、1厅、1卫
案例来源:网友小苹果

在这里居住的是个自己打拼多年的单身白领,整个房的装修都是用灰色搭配原木色的装饰。

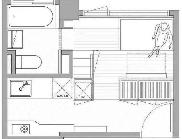
一层房它是把浴室、休息室还有厨房都做在这里设计。

入户的位置会有个特别长的通道,通道一侧会通向厨房,还有一侧会通向家里休息的区域。

厨房的两侧墙面它都是做开放式的隔板设计,这样就可以让乳白色的操作台少了些杂乱的感觉。


厨房的一侧是做了操作台的设计,另一侧就是把家里的洗衣机还有电冰箱都放在这,让厨房台下的空间能被充分的利用到。

家中的休闲区去做了榻榻米的沙发,摆放在巨大的窗户旁边,这可以让空间阳光更充足,也能感受到家的温暖与舒适。

榻榻米旁边的位置是把办公桌选择折叠的款式,这样用的时候直接拿出来,不用就可以给它收进去,它的颜色和墙面能很好的融合起来,这样就不会有任何的问题出现。

办公桌它不仅是个办公桌,在它的内部还有可以收纳的区域,只是狭窄的柜身不适合放太大的东西,只是能些小物品和办公的用品。


楼梯它是跟玻璃门组合成为空间的隔断,而且在这里还设计置物架的设计,精致的绿植摆放在这里,会让家的清爽感变得很强。

把休息区的玻璃门给拉开正好就是家里的卫生间,它是螺纹玻璃门可以把我们的隐私给更好的保护起来,而且浴室里的镜面门正好可以当做全身镜来使用。

天天在外工作忙碌,能够回到家中先泡个热水澡相信这是最舒服最享受的事情,在给浴室装修这个浴缸是一定不能省下的选择。

因为是loft公寓设计它的二层空间会比较矮,装修时也不适合给它做太多功能区设计,只好把二楼当做我们卧室,这可以让我们的生活充满着隐私感。

沿着家里的木质楼梯向上走,就可以看到家里的卧室。

卧室就是很简单的放个舒适的床,在右侧的墙面上搭配白色的灯,让空间变得慵懒起来,相信在这里躺着都能让人感觉到满满的幸福感。

早上在床上醒来,第一眼就能把窗外的景色收入眼底,相信一天的美好心情从这里会变好。

小空间的收纳也是让人担心的问题,这个房子在装修时把很多收纳的地方都做了隐藏的设计,这对空间不会有任何影响还把功能性发挥出来。
【文案编辑】球球