设计思路
本案是一套140m²的三室两厅跃层空间,设计师肖七以浅灰色为基调,并以直线条设计为主,采用高饱和度家具及饰品,让整体空间显得硬朗而又不失温度。

结构改造
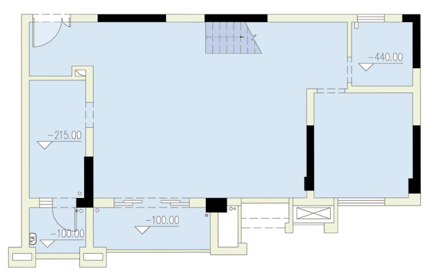
本案的单层面积不大,根据业主的日常生活需求,对空间结构进行了改造。增加了一个小吧台,为展示厨艺提供更多空间。在楼梯间的下方设计了储物间,以满足业主的储物要求。在书房设计了一个翻折床,既节省空间,又灵活实用。
一层平面布置图

此外,业主希望有一个浴缸可以解乏,可又担心使用频率不高,空置下来不便处理。因此将主卧的阳台进行了封闭处理,把浴缸安放在这里,设立成独立区域。到了以后必要时,可以将浴缸丢弃,把此处作为书房使用。
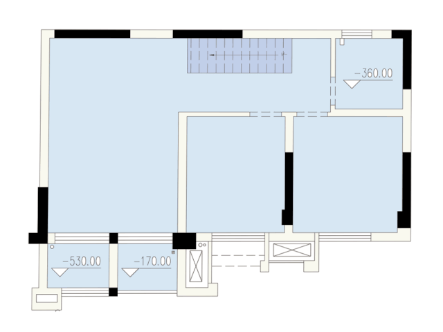
二层平面布置图

案例详解
客 厅
客餐厅采用的是横厅设计,拥有极好的采光。特别是客厅沙发处,原来是一处小飘窗,经过设计师的调整以后,改为了小景观。既可以种植物,又能获得极佳的空间延伸感,使得原本不太宽裕的空间在视觉上得到最佳的改善。


高饱和度的橙色皮质沙发,具有独特的光泽感,使得客厅时尚气质倍增,拥有舒适与美观并存的享受。墙面延续了灰色主色调,配以当下流行的射灯,营造出时尚前卫的氛围。

楼梯间的下方空间也被利用起来成为了储物间。由于隐形门不够美观,所以选择了定制配画来进行掩饰。楼梯本来不够宽敞,设计师采用了纯玻璃栏杆扶手,这样看起来既安全又简洁干净。

餐 厅
大理石花纹的餐桌,与空间主色调合拍的餐椅,配以线条造型的灯饰,让这么一个简易的用餐空间也不乏时尚感。

厨 房
配备齐全的烤箱蒸箱足见业主的烹饪技术了得。开放式的厨房设计增加了家人之间的互动,小吧台既可以弥补操作台空间有限带来的不便,也能当做早餐台使用,在满足功能需求的同时,也不乏表现力。

主 卧
对于最私密的睡眠空间,设计上没有过多的装饰,一切从功能出发,尽量保留它的纯粹与通透。主卧色调明亮轻快,空间布置简洁,整壁衣柜简约实用,增强了卧室的储物功能。


独立的浴缸区域是主卧空间最亮眼的部分,阳光透过百褶帘洒进这个小小的空间。在柔和的光影下,泡澡这件舒缓身心的事,变得更加的浪漫和富有诗意。半拉的百叶隔断让里外的人有更多的交流。音乐美酒阳光,生活就该如此幸福!


洗漱台采用几何线条加以修饰,生硬的横竖线条被镜面的圆所糅合。空间色彩跳跃,立面立体层次感较强。

衣帽间
衣帽间仍是以白色为主,配以木色地板。外表虽然简洁,但功能性强。

书 房
书房采用了带客房功能的设计,在没有客人的时候,可以作为主人的书房使用。有客人需要居住时,将藏在衣柜里面的翻折床放下,瞬间就可变身为卧房。一房两用,满足不同的功能需求。



设计师:肖七
设计风格:现代简约
房屋面积:140m²
装修费用:60万
房屋类型:三室两厅
项目地址:阿卡迪亚
设计公司:重庆谷沧设计