80㎡的房子,受欢迎程度还是蛮高的,空间大小合适,一家三口完全够住,而且打扫也不累。一般80㎡都只有两房格局,为了更符合生活习惯,两房改三房也是比较常见的。接下来就给大家分享一套改造案例,80㎡的两房,经过格局改造不仅实现三房,还打破了原有空间沉闷感,效果简约大方很满意,温馨舒适越住越有家的味道!
▼房屋基础信息
项目面积:80㎡
项目地址:北京市
项目设计:研筑设计事务所

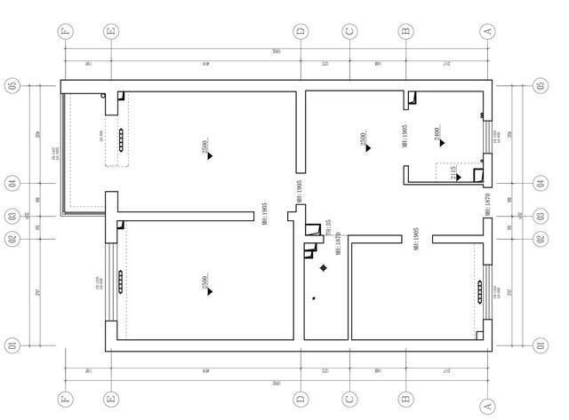
▼原始结构图
户型方正,进门后整体空间采光略差,同时卫生间过于局促,不利于日常使用。

▼墙体拆改图
拆除原有厨房隔墙,打开空间引入自然光,提升空间采光效果。压缩次卧空间,扩大卫生间面积,解决原有卫生间空间局促。同步筑起一道隔墙,围出一间储藏室,提高居家收纳空间。

▼装修布置图

▼玄关设计
玄关地面,采用六角砖和地板拼接设计,可作为划分功能区域的隐形隔断。玄关柜和地面保持同一色系,同时加入隐形门设计,整洁同一,不影响空间整体性。


▼客厅设计
客厅简洁舒适,大面积白墙和简单色块搭配,提升空间亮度,视觉上又不单调。轻巧实用的家具,中性色调更符合整体风格。

客厅不以电视为中心布局,原有电视墙位置,直接做成大面积储物柜,封闭式与开放式结合,视觉效果更活跃。增加投影仪设备,满足了日常居家观影需求。

▼厨房设计
厨房开放式设计,更好的引入自然采光,提升空间明亮。简易吧台设计,可以是厨房操作台的延伸,又可以简易餐桌,简单实用又有设计感。一抹黑板墙设计,为居家空间注入活力。


▼主卧设计
主卧还是以大白墙为主,一抹绿色装点背景墙成为视觉焦点,让空间清新自然更有活力。L型衣柜设计,强化卧室收纳能力。原木色床头柜穿插其中,形成原木与白的穿插设计,更有设计感。


窗帘抬高安装,改善视觉效果,减少空间压抑。轻浅色调和适宜尺寸,避免了空间臃肿。

▼次卧设计
次卧主要是长辈居住,装修延续了简洁格调,暖色系增加了温馨感。除了衣柜之外,电视墙也定制了一面收纳柜,白色与木色搭配,风格统一协调,整体性更好。


阳台采用半墙隔断,既划分了空间又保持了采光通透。除了遮光帘之外,阳台还设计了一层白色窗帘纱,轻柔舒适透光又增加私密。


▼书房设计
小卧室暂时作为书房和办公区使用,利用空间结构定制开放式书架,搭配简易书桌椅,简单实用。有宝宝之后,就可以重新布置变成儿童房了。


▼卫生间设计
改造后的卫生间,一改之前拥挤的格局,实现三分离式设计,容纳了盥洗区、洗衣区、马桶区和淋浴区,彼此都有一个合适的尺寸,而且相对独立,让日常使用更加方便。

浴室柜采用斜切设计,扩大进门区域避免磕碰。洗衣机采用嵌入式设计,保持空间整洁统一,顶层设计开放式置物架,用于收纳洗衣用品。

淋浴区采用通透玻璃隔断,改善空间闭塞。浅灰色墙砖与花砖结合,空间不单调,视觉冲击更强。

独立马桶区,采用壁挂式马桶节省空间。墙排台面可以置物收纳,上方空间刚好安装热水器,可以说非常完美。

以上就是这套80㎡装修改造案例,整体改造还是很成功的,不仅采光好了很多,三房格局也更符合现在家庭需求。三分离式卫生间设计更是难得,功能区独立让日常使用更加舒适