在所有装修风格中,现代简约应该是最看不腻的,摒弃繁琐的装修设计,注重空间的使用功能,简约而不简单,即便住个十几年,依然可以保持整洁如新。如果还在纠结装修风格选择,不妨看看今天分享的案例,142㎡四房两厅现代简约装修,简洁大气进门就喜欢上了!

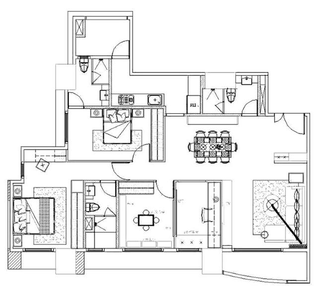
平面布置图,142㎡的四房两厅,常住人口两大两小。屋主夫妻喜爱简约空间,通过公共领域细节设计带出时尚氛围。

进门玄关,由于入户门正对客厅,做玄关柜隔断空间,利用透明玻璃局部镂空,隔断之余又带出居家个性。玄关柜集收纳、展示、换鞋凳一体,提高日常使用舒适感。隔断柜对立面,同样设计收纳,悬吊方式规划出扫地机器人的空间,让玄关空间轻松保持整洁明亮。

客厅简约宽敞,墙面到地面深浅色的搭配,让空间更有层次感。考虑到家中有两个小孩,舍弃了茶几的布置,腾出足够的空间给孩子玩耍。地毯铺设减少地砖带来的冰冷感受,给孩子提供一个相对舒适安全的玩耍空间。

屋主希望打造家庭影院,于是安装了投影仪和隐藏幕布,心爱的影音设备放置在几何造型的电视柜中,保持空间整洁。新卡拉拉白大理石电视墙,搭配上黑色玻璃拉门,简约而富有层次感的设计。在灯光作用下,更加吸引眼球。

餐厅简洁大气实用,以系统柜搭载结晶钢烤门板,简约耐看清洁容易。几何造型的藏酒柜,以高低落差的方式,完美展示了屋主对酒的收藏,LED灯和光条结合,让用餐环境创造出不一样的视觉效果。
餐厅以系统柜搭接结晶钢烤门板,墙面采用隐藏门搭配灰镜,创造出视觉相连效果,亮面材质让公领域焕然一新,并消弭大众对于系统家具生硬印象,设计师考量到屋主平时有收藏酒的习惯,于是在餐厨柜内设计了几何造型的藏酒柜,并以高低落差的方式让屋主能够完美的展示收藏,加上设计师规划的LED灯与光条,让用餐环境创造出不一样视觉效果。

系统柜两侧设计隐形门,中间搭载灰镜,刚好与系统柜中间镂空部分相呼应,创造出视觉相连效果。亮面材质的运用,减少了系统家具的生硬感。餐厅另一侧墙面,设计了照片墙,记录着孩子的成长与生活的美好。不规则的布置,让单调的墙面更具活泼。


仅靠餐厅的房间设计成书房,是家中一处能专心阅读、办公的空间。屋主又不希望空间完全隔绝,因此采用铝框折门和薄纱结合,延伸空间穿透视感提高灵活性。

书房简单实用,整体以灰橡色与冰雹白系统板材打造,长75cm的书桌满足了屋主日常办公需求,同时书桌上方规划出大面书柜,玻璃拉门满足藏书需求,不同材质的变化带出层次感。靠窗设计卧榻,工作之余也有一处休憩角落。


主卧装修素雅沉稳,床头深色木皮搭载黑色烤漆玻璃腰带,搭配上无门把手衣柜设计,呈现出干净利落的氛围。衣柜靠近过道一侧设计了端景,多了展示和收纳平台,也改善了视觉空间,不然一整面衣柜显得太过单调。

梳妆台非常巧妙的设计,柜门打开和关闭完全两种状态,满足女主日常梳妆需求。


女孩房设计很简洁,保留弹性空间供未来发展。一整面衣柜设计,和主卧一样采用无门把手设计,减少了磕碰隐患。抽屉式床架,可以轻松收纳玩具,低矮的收纳尺寸更适合儿童。

男孩房现为游戏室,设计了与主卧床头面板相同调性的衣柜,卡通地毯多了一份童趣,其他空间摆放玩具,完全的娱乐空间。同时给日后家具布置,提供了更为弹性的空间。
如果你刚好要装修,不妨参考一下这套现代简约案例,除了基本收纳功能,镂空的穿透感与错落高低层次也是值得借鉴。