为了孩子上学特意购买的二手房,好处是房子一直空置,所以纯粹的毛坯,装修的时候省掉了很多拆除部分。但是房子本身属于老小区,整体缺点很多,为了满足三代人的居住,需要有大的改动。

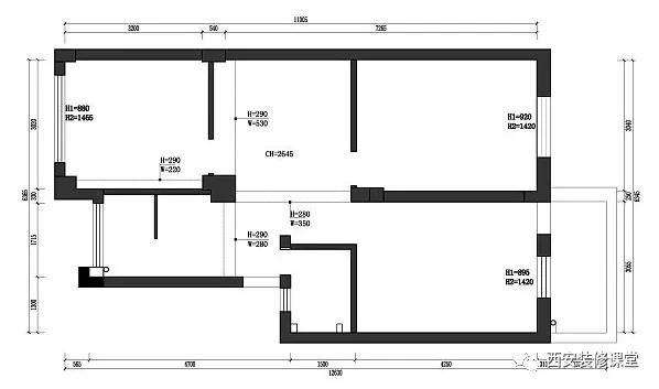
▲原始图纸。
1.进门厨卫对门,而且没有收纳空间,厨卫都很小,三代人居住肯定以后存在排队上厕所的情况;
2.南边两个卧室很大,一个可以作为儿童房,隔壁带生活阳台的卧室当做主卧,厨房隔壁的房间作为父母房备用,父母接送孩子的时候需要入住。
3.客厅很小没有餐厅位置,因为过去的老旧小区,格局都被卧室挤掉了,最最重要的是客厅没有窗户,完全是暗厅。

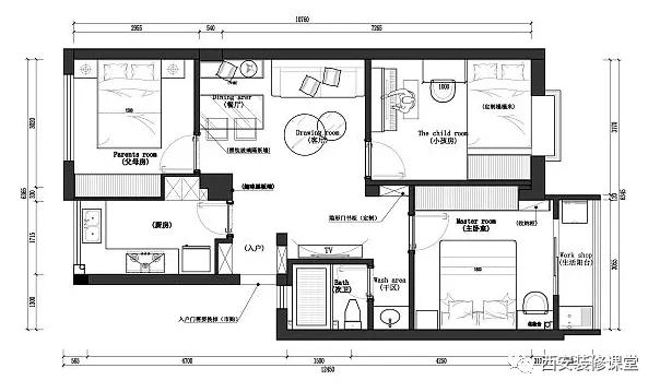
▲设计后图纸。
1.进门右手的卫生间门洞封堵,朝向客厅墙体缩减,然后移动主卧墙体,扩大卫生间,成就干湿分离,保证三代人使用不会排队,同时解决门口收纳,和卫生间对厨房的问题。原来不能拆除的卫生间承重柱之间镶嵌了收纳以及换鞋凳
2.左手的厨房牺牲移门镶嵌鞋柜,满足进门的收纳,刚好和卫生间的换鞋凳结合,完美实现门厅的收纳。原来厨房窗户外面有个小平台,这次改造重新更换厨房窗户朝外移动,拓展了厨房的空间,同时为了厨房的收纳更多,移动了隔壁父母房的墙体,成就了厨房的西厨操作台和收纳
3.把父母房朝向客厅的墙体内移,缩小空间,同时拓展了客厅空间,为了满足餐客厅的共存,同时父母房新砌墙的时候预留窗户,解决客厅没有自然光的问题
4.缩小原来的主卧空间,拓展卫生间干区,解决了三代人居住难题,同时缩小原来的生活阳台,给主卧留够足够空间

▲因为是老旧小区,本来想彻底更换防盗门颜色,然鹅物业不同意改变外观,最终更换成了里头是白色,外头枣红色的门,进门视觉清新多了

▲进门左手厨房,牺牲原来的双扇移门,新砌墙体成就镶嵌鞋柜,还重新做了强弱电箱分别隐藏在鞋柜里头。鞋柜采用白色和木色套色视觉清新,下方镂空满足进门随手放鞋,中间镂空满足进门随手放置钥匙和包包所需

▲进门右手移动朝向客厅的墙体以后,改变卫生间入门位置,承重柱无法拆除,刚好镶嵌了换鞋凳和挂衣板功能,与对面鞋柜共同满足进门的更多收纳和功能


▲门厅的改造以及入户门的更换,是最满意的地方之一,进门心情都好多了

▲站客厅位置看门厅以及餐厅,厨房门旁边同样是承重柱,无法拆除,为了视觉美观,做了房型的黑板漆,给孩子留一块专门涂鸦的地方,同时也能给入门一个惊喜。右侧缩小父母房以后,腾出了餐厅空间,为了解决暗厅问题,父母房新砌墙体预留窗户位置,用来白天可以引光入室,同时里头布帘悬挂保证卧室隐私

▲回看电视墙,缩进卫生间以后,承重柱拆不掉,做了换鞋凳,导致电视墙跟前突出一堵墙,不过刚好能让电视墙隐私更好一点,白色的宜家高柜搭配,没有准备放电视,用挂画遮挡一下难看的插座

▲水泥花盆龟背竹与白色电视柜很配,增加一点生活气息

▲网购的小玩意,让生活更有仪式感

▲站餐厅看入门以及电视墙,这个角度能看清承重柱的位置,无法拆除,只好镶嵌换鞋凳,导致背后是电视墙

▲客餐厅全景,没有窗户,所以新作窗户引光入户,原来的卧室墙体是和厨房平齐的,移动以后成就了餐厅位置。移动墙体上方大梁采用吊顶遮挡,刚好很好的分区

▲家具是卡着每一寸尺寸下单购买,极简两人位沙发,搭配铁艺边几,黑白配的地毯就是客厅的全部

▲客餐厅全景,为了视觉简洁,没有做主灯,采用明装方形双头筒灯以及同样黑色的滑轨灯点缀,与餐桌腿以及餐椅和窗户一体呼应,视觉非常有层次和质感

▲儿童房门口很小的客厅区域,麻质的灰色沙发,蓝色抱枕,铁艺边几搭配,墙面极简黑色边框挂画和铁艺墙饰网购,极简又有品味

▲缩小父母房成就的餐厅空间,空间很小,所以采用卡座的形式,一是满足收纳,二是节省空间,三是餐椅靠背不会弄脏墙面

▲黑色的金属窗户与餐桌椅呼应,恰到好处,极简的吊线灯非常有艺术感。略显得丑陋的就是空调的管线,隐藏很麻烦,也就放弃了《难看的挂机空调管线,怎么做隐藏?》


▲很有艺术感的摆拍,留住最美的瞬间

▲缩小阳台以后的主卧空间,采用时下最流线的脏粉色背景,搭配无印良品的家具,气质上简约清爽

▲为了完美融入梳妆台,严格把控每一寸的尺寸,网购的化妆台,终于满足了女主人的要求

▲主卧门后是通顶的衣柜收纳,预留的空间刚好满足正常通行;蓝灰色素色窗帘与纱帘保证光线的隐私

▲主卧缩小以后,门口的承重柱与墙体的凹陷区刚好定制书柜,平时的书籍都可以收纳于此,不仅方便而且颜值挺高

▲客厅跟前的大卧室做了儿童房,保持原来的大小,是家里最大的空间,需要容纳钢琴、书桌、床铺以及一个1.5米的衣柜,还得留出活动空间,目前看基本满足

▲靠角落布置床铺,并排的书桌以及钢琴,学习娱乐两不误

▲书桌与床铺之间轻巧的开放和封闭结合的床头柜,可以让孩子放随手的书籍以及日用品

▲背景两幅动物图案的卡通挂画,黑白与彩色的点缀,恰到好处

▲父母房因为横向缩小腾出外头的餐厅空间,所以空间压缩,仅仅容纳一张床铺和简单床头柜,不过两边窗户通透,也不会显得憋闷

▲朝外双色布帘为了遮光,朝向餐厅纱帘轻盈,为了隐私需求

▲父母房对面的衣柜通顶定制,还预留了专门的电视空间,父母入住更方便

▲双色窗帘,亮黄色暖色点缀,让父母房温馨一点

▲厨房全景,拓展空间以后,刚好满足L型的操作台,还能容纳冰箱,浅色系颜色搭配,在不开灯的情况下还能满足日常操作

▲为了水槽晚上操作更方便,专门预留吊线灯位置,这样晚上洗菜不至于背光《品质厨房三盏灯,你家做了几个?》

▲厨房要满足收纳,合理利用垂直墙面空间,采用置物架上墙收纳,不仅整洁而且颜值还高,随手拿取更是方便

▲橱柜对面的凹陷区就是牺牲父母房专门做的西厨收纳和吊柜,这里也可以作为操作台使用,兼顾家里的西厨水吧台


▲移动主卧墙体改变卫生间入门方向,同时做了干湿分离,为三代人的同时使用做了最大的满足。定制的浴柜搭配精致的圆镜,颜值也简单。半截墙小白砖保护墙面而且经济实惠

▲湿区采用素色石材瓷砖,做了单独淋浴隔断分区,原来的朝外小窗户保留,为了满足吊顶只能牺牲局部窗户。借用新包管道做了半截墙,可以作为淋浴区的置物需求


▲网购的小玩意,满足卫浴的日常收纳


▲网购的橡胶防磕碰门吸,代替传统门吸非常便宜好用,颜值高的黑色毛巾架,很有颜值