这是一套75平的二居室,这套房子整体面积不算太大,不过功能却是一个都不少。茶室、休闲室、书房一个都没有落下。对于小户型来说,颜色搭配切勿杂乱,在功能上也要尽可能地完善,收纳一定要做到位。这套房子整体上中式装修,别有一番古色古香的韵味。整体是一套不错的设计,我们一起来观摩一下吧。(设计:五明原创设计)

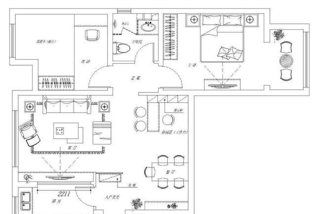
这是这套房子的平面设计图,是一套中规中矩的常见户型,空间设计紧凑功能性强。

入室门对面是玄关,木质玄关屏风作为隔断,给客厅增添一丝朦胧美感。屏风旁边摆放着一台玄关柜,柜子上是一个造型别致的小景观,木质屏风完美将光纤切割开来,搭配小景观,有种古风韵味感。

客厅整体铺着木质地板,不做吊顶不做背景墙,搭配中规中矩的家具与摆件,中式装修的禅意扑面而来。

高腿布艺沙发,不留卫生死角,深蓝色的边柜作为点缀,给客厅增添不少趣味感。

电视机摆放在电视柜上,原木色的电视柜和地板颜色一致,整体性很强。

电视背景墙的背后是厨房,考虑到采光问题,拆掉了原有的电视背景墙,取而代之的是木质栅栏墙壁,通透美观。原木色的风扇灯,一物两用。

客厅飘窗做成了榻榻米地台,洗衣晾晒区放在了主卧阳台。榻榻米下面是抽屉式收纳空间,上面铺上蓝色厚垫,就是一个茶室。亲朋好友到访,可以分担客厅待客压力,美观实用。

质朴无华的茶具,氤氤氲氲的茶香茶气,给整个客厅都笼罩一层茶的芳香。

餐厅一分为二,一半餐厅,一半休闲区。原木色的餐桌椅,明亮的圆形餐厅灯,凝聚一家人的温馨。休闲区靠墙是开放式书柜,小型吧台兼备着书桌功能,大气实用。

厨房整体“L”型设计,厨房入室门高柜嵌入了烤箱和洗衣机,严丝合缝。

主卧贴墙设计了步入式大衣柜,推拉门设计搭配帘子柔性隔断,美观大气。

主卧有一个大阳台,阳台设计成休闲晾晒区。阳台卧室一体化设计,视野宽敞明亮。在阳台的一端摆放着一台梳妆台,小巧精致。

次卧兼备着书房和卧室的功能,榻榻米床,满足休息之用,收纳能力也很棒。

飘窗横版置物架,收纳书籍和摆件非常方便。

双人书桌和墙面书柜,造型简单实用。
卫生间常规化设计,就不赘述了,谢谢。