现如今随着生活品质的提高,复式户型也越来越多了,相较于传统的平层结构,复式结构的新房,不仅能做到完美的动静分区,在空间表现及利用上,也有不错的优势。而相较于别墅户型,说的通俗一点,就是拿着低配的价格,享受别墅户型所拥有的舒适性。那么我们在设计复式房时,如何才能表现出大气感呢?
本期就给大家带来一套复式房案例,全屋不仅在空间规划上,做到了合理的利用;在效果表现上,也做了大气感,且不失精致。虽说是耗时半年才装修好的,但这效果却很值得这么多天的辛苦。
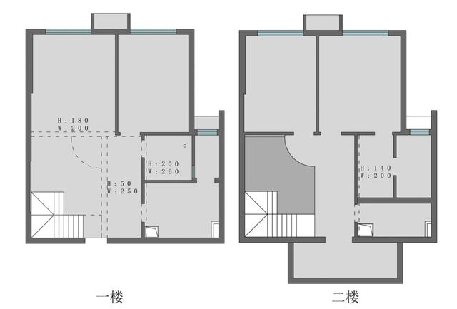
原始结构图

新房建筑面积150㎡,屋主一家三口,在整个新房设计要求上也很简单,就是大气、美观、精致、有家的感觉。而在房间分配上,则希望一层作为活动区,二层作为休息区,从而做到动静分离,提高居住舒适性以及整洁性,而这也是当初买复式房的原因之一。
平面方案图

结合屋主的功能需求,且在原户型比较工整的情况下,只在布局这块做了调整。
1、将一层卫生间做墙体外延处理,解决台盆及进门鞋柜功能。
2、将一层卧室与客厅打通合并,在提高空间感的情况下,并将原空间改成孩子活动区。
3、餐厅上面的空间做挑空处理,从而保证进门后的第一视角,就能突显出大气空间感。
4、将二层厨卫空间打通,改成衣帽间及卫生间,增加主卧的功能性。
5、二层北边阳台改成储物间及书房功能。
一层客餐厅

进门就是客餐厅,当餐厅顶部做了挑空处理后,可以很明显的感受到空间的大气感。甚至可以说的夸张一点,就好像和进到别墅中的感受一样。而左边的成品装饰柜、餐厅上面的水晶大吊灯、墙面超大的装饰画,也都透露着满满的精致感。

来到客厅,为了使空间看起来更具格调精致性,沙发墙采用了蓝绿双拼色来处理的。再加上墙面的线条装饰,既有了很丰富的层次感,也突显了温馨自然的韵味。而黑色的皮沙发、深绿色的地毯、以及千鸟格饰面的单人沙发,也都将精致、高贵、档次给表现了出来。

相较于传统的复式设计,给客厅做挑高,餐厅做隔层,这种反向的处理方式,不仅表现出了大气感,也将家的温馨做到了提升。不得不说,这个设计思维还是挺独特的。
儿童活动区

由于家里的孩子很小,且玩具比较多,将这间卧室改成活动区,不仅让孩子有了充足的玩耍区,也方便了亲子教育。当然,随着孩子慢慢长大,该空间功能也可以随时做改变的。比如墙面柜子的留空位置,就是用来摆放钢琴的。
卫生间

当卫生间墙体做了外延处理之后,空间扩大的感觉还是非常明显的。外面做台盆,增加生活的便捷性,内部则保留马桶及淋浴功能的。不过最抢眼的还是地砖这块,黑白回形的饰面,既能与整体风格统一,也显得很上档次。
厨房

橱柜采用了左右分离的方式来规划,既做到了干净利落,操作空间也不俗。而金色的拉手搭配上蓝色的柜门,也突显出了精致感。为了不遮挡采光,正对面墙体选择装饰架来收纳电器,也算是比较实用的做法了。而外面的小阳台,则是当作洗衣间来使用的。
二层主卧

主卧的床头背景设计和沙发墙一样,都是采用了线条及双拼色来处理的。只不过考虑到卧室的层高比较有限,为了提升视觉效果,就将绿色部分延伸到了顶部。这样既有了一定的装饰性,也增加了一点趣味性。而灰色的丝绒面大床,也表现出了舒适性。
儿童房

小孩房的整体色调以明亮为主,并且还搭配了明黄色作为点缀,从而营造出敞亮干净的居住环境。而在布局这块,则基本上是以留空为主的。毕竟孩子很小,本身就比较好动。再者,预留的空间后期也是可以再次做规划的。

该卫生间虽说是与主卧室相通的,但在外面也正常保留了一个门,所以也充当了公卫的功能。而双台盆的设计,则营造出了大气空间感,也方便了屋主夫妇生活使用。
本期案例就分享到这里,虽说这套150㎡的复式房,只保留了两个房间,但对于屋主来说,却是最实用的,毕竟家里只有三人。再者,楼下的沙发及活动区,也是可以当作临时客房使用的,所以并不需要预留三个房间。不过最让人惊喜的,还是客餐厅的反向挑空设计,真的太棒了。也如屋主说的那样,就算花费半年的时间才装修好,也是值得的。