本套房是二手房改造,因为小夫妻的职业原因,对色彩是极其反感,不想让家里添加各种彩色的东西,所以定位就是黑白质感现代。
户型:三室两卫
风格:黑白极简
造价:拆除1万;半包5.5万;其余设计师推荐,业主自购

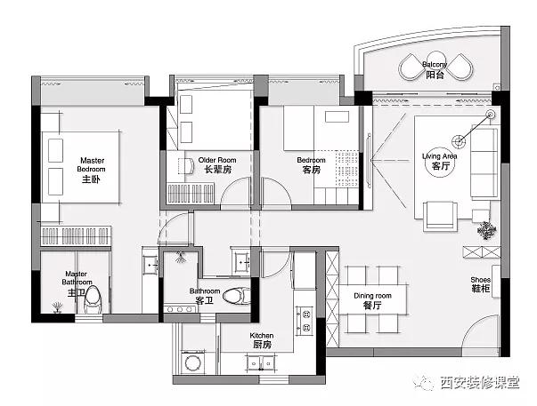
▲这是原始的格局。进门是厅的纯南户型,过道几乎分割所有的功能区;过道右边依次是儿童房、父母房以及最顶头的主卧;过道左侧依次是厨房带洗衣间、客卫以及主卧里头的主卫。
大的格局几乎没有什么可以改动的,唯一业主不满意的就是厨卫空间;厨房太小,带个洗衣间浪费空间;客卫和主卫都没有干湿分离,分区不是很明确,后期如果三代人居住,肯定非常不方便

▲这是设计后的格局。大格局没有变动,客厅餐最多的就是定制收纳空间,让黑白质感的家保持整洁;进门直对客厅,像好多父辈一样,小夫妻执意还是做了分割的玄关;改动最大的厨房,缩小了洗衣间,扩大厨房的使用空间;把客卫做了干湿分离;主卫同样做了干湿分离处理,同时扩大的浴柜的储物能力;顶头是主卧小两口住,中间卧室暂时布置成父母房,隔壁房子是客房,因为目前没有小孩,暂时两人居住


▲因为是二手房,更换防盗门物业再也没有干涉,所以干脆根据自己的喜好,更换成了纯黑色的款式,紧挨有没有鞋柜,进门又不会触碰墙面,所以入户门套节省了;为了平时通风的需求,专门选用了门中门的功能,这样夏天既能防盗,又解决了纯南户型通风不畅的问题。进门右手空墙一副黑白挂画装饰,延续风格,同时也是为了遮挡下方的弱电箱

▲未改造之前的客餐厅。过去的装修家具都比较简陋,也不讲究配色,所以怎么看都是落后难看

▲改造之后的客餐厅,黑白两色对比,让视觉空间更有质感,采用木色的点缀中和黑白的单调,让家有温馨之感;局部绿植点缀来营造家的温馨

▲客餐厅全景,地面是浅色的仿石材瓷砖,这个也是纠结好久的选择,因为颜色太过于浅,肯定会不耐脏,后期入住打扫的频率肯定会加大。但是为了整体颜值,最终还是决定浅色石材瓷砖,这样黑色的皮质沙发和其他家具才能有强烈视觉对比,更符合小两口的喜好

▲进门见厅,玄关作为老一辈人的专属,其实很让现在的设计师吐槽,如果是大户型还好,小户型人为布置玄关,就会让本身不大的空间更加零碎,等于是花钱还没有效果;但是小两口实在没有安全感,执意要做个进门的遮挡,无奈只能采用与其他木色统一的做法,做了个进门的隔断,刚好分开进门的换鞋区以及沙发区,进门就有了一个迂回空间了

▲正宗黑白灰,每一件物品都遵循设计的思路,黑白灰贯穿整体:黑色的皮质沙发与单椅统一,黑色的锥形茶几,黑色的落地灯搭配白色的灯罩,甚至是背景的挂画也是黑白抽象,灰色的地毯提升层次和温馨度。同时空间小,注重视觉的虚实感觉,让色彩的搭配与空间的协调做到完美

▲黑白灰的质感加上线条感的极简,视觉非常现代,非常符合现在年轻人的极致追求;仅仅一盆绿植也选择的是深色水泥灰的花盆,为了和整体协调

▲精心挑选的装饰画,极细黑边,画中画的抽象提升艺术感,错落的悬挂又能突出视觉的时尚新颖

▲黑色皮质的柔软搭配金色的细腿,刚柔并存,现代质感发挥到极致

▲极具线条感的钓鱼灯搭配,白色的灯头与飘逸的阳台纱帘呼应,视觉轻盈,可以冲淡黑色的硬朗

▲门口看全景,餐厅与电视墙统一定制收纳柜,采用局部镂空木色的点缀,视觉极简的同时,满足公共区域的所有收纳;胡桃木的餐桌,黑色铁艺的桌腿以及四把黑色皮质的餐椅,与餐客厅协调呼应


▲嵌入式定制柜可以弱化柜体的存在感,让视觉更简洁,无把手极简收纳,可以满足公共区的杂物收纳

▲餐柜中间木色镂空是为了随手放置杯子各种就餐用具,同时作为展示作用,也是进门的一景

▲主卧空间延续黑白极简,为了视觉温馨,背景采用了灰色的硬包处理,同样是极简线条勾勒,与旁边衣柜协调统一;主卫原来的格局做了变化,拉通定制浴柜,采用颜值高的长虹玻璃隔断分割,区域划分同时提升整体视觉质感

▲衣柜为了做通柜布局,四周吊顶专门压到2.4米,视觉更简洁;平板柜门搭配极简黑色把手,视觉非常极简

▲黑色的皮质床铺,搭配白色的一床温柔,极度舒适

▲舍弃传统的床头柜,采用兼顾收纳功能的落地灯款式,颜色同样黑色质感,极具线条和雕塑感,卧室也能颜值和艺术感兼顾

▲主卧通铺木纹砖,兼顾视觉的温柔以及入住的环保

▲风格突变的父母房,因为给父母准备的,完全接受不了黑白的冷感,所以专门做成白色与木色的清新温馨,来照顾老人的感受

▲依据空间的狭小,次用定制榻榻米的形式,满足收纳和休息,同时床头以及靠窗户位置都做了收纳布局

▲书桌与移门衣柜严丝合缝,空间利用到位,床头简单隔板作为展示使用,视觉尽可能简洁,减少压抑

▲书桌是可以折叠的,在不使用的时候收起来,可以让空间更宽敞


▲白色与木色氤氲出一室的温馨


▲二手房改造的好处是约束比较少,所以阳台果断采用了无框玻璃窗,视野更加通透敞亮

▲厨房改造前后对比。砸掉洗衣间缩小空间以后,把厨房空间得以拓展,终于把冰箱放进去了

▲黑色极窄边框的全景门,单开门冰箱满足功能;地面是灰色瓷砖工字型铺贴,墙面柔光浅灰色瓷砖,木色地柜与白色吊柜的搭配,整体素雅柔和,烹饪区做到舒适清爽

▲砸掉洗衣间拓展厨房,满足了洗切炒的基本格局,让空间更加宽松。

▲主卫改造前后的对比。天地之差

▲主卫改变格局,定制拉长的浴柜,比原来的浴柜扩大的一倍还多,而且三门镜柜满足了所有的收纳需求;极简黑色的梯形毛巾架,时尚又实用

▲主卫采用黑色的百叶帘与整体颜色协调

▲客卫改变格局以后,采用玻璃移门的形式满足干湿分离的需求