新房装修,设计真的很重要,一个好的设计方案可以发挥空间的最大价值,让日常生活更轻松舒适。今天分享的是一套86㎡的装修案例,房屋坐落于深圳,原本的两房格局,经过设计改造,不仅实现三房,还拥有衣帽间。听起来就觉得不可思议,别着急一起看看装修结果吧!

原户型结构分析:建面86㎡的两房格局,入户太大空间过于浪费,厨房太小使用不便,儿童房不大空间异形,此外过道直冲主卧房门。

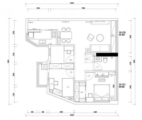
装修布置图,改造分析:
1、重新规划入户,提高空间利用率,合理的空间分割,实现玄关和厨房功能;
2、原有厨房改造成卧室,拆除和儿童房之间的隔墙,利用收纳柜做隔断;
3、改变主卧进门方向,避免过道直冲房门。格局变化后实现主卧衣帽间功能,同时过道也多了一组收纳柜。

改造后的入户门厅,空间相比之前狭小很多,但实用性一点不差。储物和留白比例恰到好处,简洁又实用。门把手和挂钩选择了黑色,利用白色背景衬托,沉稳大方让门厅变得简单美好。

合理的空间分割,将原本宽敞的入户空间划分为门厅和厨房,鞋柜和玻璃门结合做隔断,既保证了门厅收纳,又兼顾了采光通透。门厅采用无主灯设计,高度更统一,照明效果也更舒适均匀。


入户阳台改造的厨房,不规则的橱柜设计,弥补了户型的缺陷,良好的采光提高了视觉宽敞效果。嵌入式厨房电器,美观实用。

隐藏在拐角的餐厅,简易实用又不缺乏收纳。一组通高的餐边柜,使得餐厅杂物得到合理的收纳。简易造型的桌椅,自然的纹理、柔和的色泽,让人感受到自然的气息。餐厅墙面设置了软木墙板,可以记录生活美好时刻也可以留言。线条感十足的吊灯,暖色调的灯光,为餐厅增添了一抹温馨。


客厅,灰色纹理的瓷砖覆盖整个墙面与地面,搭配柔和的家具,视觉上不单调,也不会太过冰冷。靠窗设置了一排地柜,可坐可躺还增加了收纳。


过道尽头利用一幅抽象画装饰,增添一丝艺术气息让空间不单调。格局变化后,过道增加了一组转角收纳柜,与墙面完美的结合,丝毫不影响美观。


卫生间大理石的洗手台与墙面宛如一体,洗手台一直延伸到马桶上方,可以用于收纳,不需要再单独安装纸巾盒。磨砂玻璃门做隔断,引入光线又提高私密。


主卧舒适宜人,淡粉色的床头背景,让空间多了些许温馨明快,床头挂画与床品相呼应,别有一番诗意。改造后主卧实现了衣帽间功能,满足了女主人对衣帽间的向往。玻璃门隔断保持通透感,空间也不显拥挤。


儿童房整面墙的收纳柜设计,保证了充足的收纳空间,让空间井井有条。高低床提高了空间利用率,利用空间结构布置简易桌和置物架。


小卧室蓝白色为主调,没有多余的装饰设计,整个空间干净硬朗充满活力。简单的书桌和吊柜满足了日常使用。黑白格子的床品与窗帘呼应,简洁大方。