这是一套三室两厅的案例,89平的休闲北欧风格。现在虽然还有很多的软装都没有跟上,但即便只是现在的样子就已经很好看了!

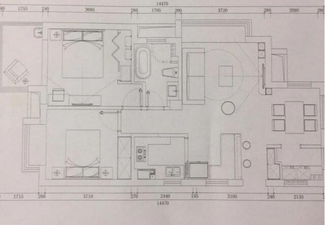
这是整体布局的样子,整个装修布局都是女业主结合自家的生活习惯来进行布局和设计的,很多地方都会经过反复比较也都不会嫌累的。

玄关的一侧是做鞋柜用的,回家之后的鞋子和外套都有一个地方可以放,玄关也可以整洁一些。另一边是西点操作台,可以在这里做各种蛋糕和点心,冰箱也是放在这边的。

餐厅对面是洗衣间,家里的换洗都放在这里解决,洗衣机和烘干机什么的,都备的很全。

有一些小东西就可以在洗手池里面清洗,这样也算是对这个小空间有了很好的利用。

餐厅是一个独立空间,两边都有窗户,光线自然是很充分的。小窗户的台面上还可以放置一些小绿植,结合着电视背景墙和电视柜,做上一竖排的小收纳空间。用收纳篮进行收纳小东西,餐边柜的责任也可以承担起来。

看着客厅还是挺大的,飘窗还能当凳子坐,坐在飘窗上有一个小茶几,一个人的时候那还挺享受的。

沙发背景墙后面就是卫生间,卫生间的地方看着挺小,但实际上放的东西可不少啊。洗漱台,马桶淋浴区还有浴缸哦!

淋浴区对面的地方,放上了浴缸,这样一来是淋浴还是泡澡都是可以的。

主卧的房间是有一个阳台的,因为有了洗衣房,所以这个阳台就可以当做生活阳台了。

这是另外一个卧室,除了一些标配之外,还放了一个书桌。还有一个小飘窗,晚上可以在上面发发呆。