小三房刚需,一是满足足够多的收纳,同时还得考虑偶尔三代人的居住,所以在收纳和空间的取舍是最难的。

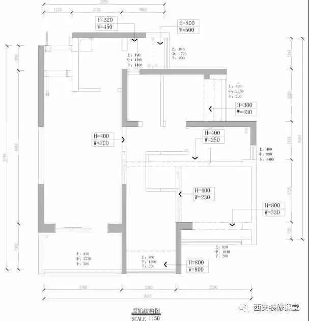
▲原始户型图。很普通的三室空间。纯南户型。进门的厨房很小,而且带一个洗衣间,过道空间就挤压到很小了,破坏了整个客餐厅的通畅和完整。主卧原始设计的是衣帽间,虽然多了功能,但是把次卧给挤压了,而且格局很别扭。

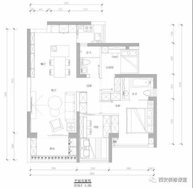
▲改造以后的户型。
1.厨房砸掉做了纯粹的西厨,保证客餐厅的通畅和完整。把中厨移到原来的洗衣间满足功能。
2.砸掉主卧的衣帽间,保证主卧衣柜收纳,同时把次卧的飘窗砸掉,扩充了次卧空间,过道收纳柜布置,反而比原来衣帽间更实用,格局更好

▲砸掉原来的厨房,做成西厨收纳区,不仅视觉空间宽敞。同时成就了餐厅的宽敞以及岛台的功能。同时过道右手鞋柜与餐边柜一体定制,增加了全房的收纳功能。黑白灰无色质感混搭

▲过道餐边柜黑白套色灯光时尚点缀,下方镂空专门给扫地机器人留出空间。进门原来厨房的烟道统一用爵士白铺贴,冰箱镶嵌,烟管从上方吊柜经过保持视觉上的美观

▲进门的视角,砸掉厨房以后,整体方正,光线更好。成就岛台这是意想不到的惊喜。局部吊顶采用分区设计

▲客厅看全景,电视墙黑色金属收框,金属马赛克点缀装饰。棕色皮质沙发搭配大理石圆几,保持空间的通畅

▲极简质感沙发区,脚凳与亮黄色懒人沙发辅助功能,格局更灵活。背景灰色壁布极简的挂画,不做多余处理

▲不做多余布置,一大一小立体挂画极简布置

▲为了和其他黑色元素呼应,空间增加质感,吊顶同样镶嵌黑色钛金条作为点缀,空间更连贯完整

▲主卧整体简约素雅实用为主。床对面和门后都有衣柜收纳。对面的主卫为了采光做了金属移门设计

▲灰色壁布与同样灰色的皮质床头协调,黑色极简吊线灯功能和颜值都有了

▲黑色吊线灯不仅质感,同时可以腾出更多床头空间。颜值和艺术性兼顾

▲窗户跟前原来的承重墙做了假柜门装饰,旁边凹陷区收纳柜储物,视觉上更美观大方

▲次卧空间,砸掉了飘窗,实现了空间的扩大,同时砸掉主卧衣帽间,成就衣柜与书桌的布置。平时作为书房使用,老人偶尔来住就是客房了

▲主卫空间统一爵士白明亮简洁,浴缸与定制石材浴柜布局非常完美,同时满足了泡澡的需求。超大的镜柜满足更多收纳